Monolocale in vendita

Milano, Via Sebino - Tito Livio Salgari
€ 169.000
1 locale 1 locale
25 Mq 25 Mq
1 bagno 1 bagno

Monolocale in vendita

Milano, Via Sebino - Tito Livio Salgari

Descrizione annuncio

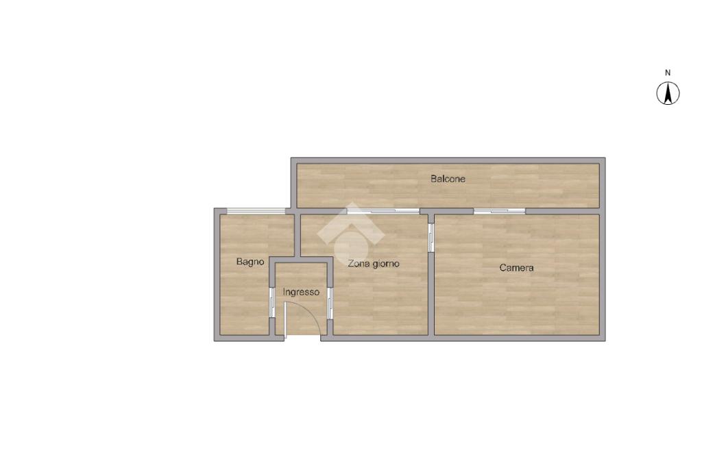
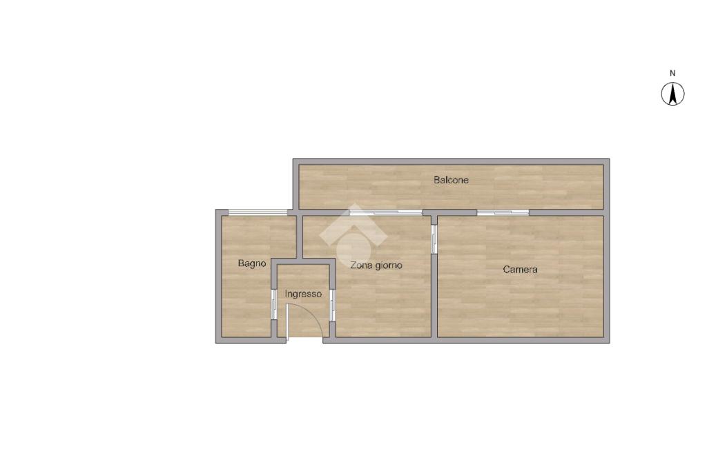
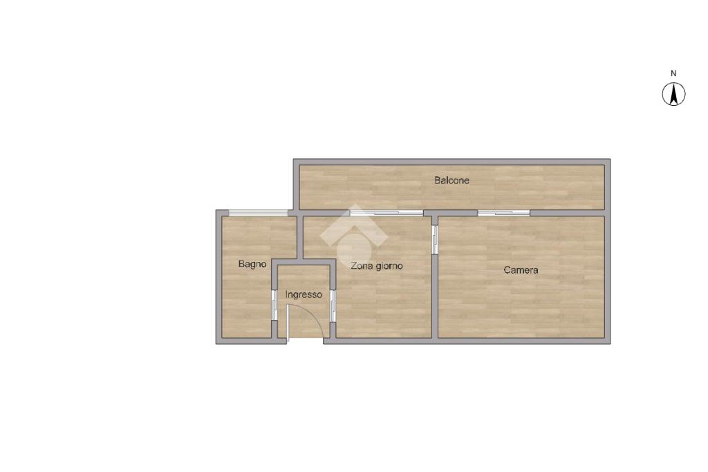
Via Sebino 6 – A pochi passi dal centro di Milano, in una zona residenziale tranquilla e ottimamente servita, proponiamo in vendita elegante monolocale in ottimo stato, pronto da abitare.

L’appartamento è situato al quinto ed ultimo piano, caratteristica che garantisce grande luminosità e ottima ventilazione naturale. Gli spazi sono ben distribuiti: ingresso su cucina a vista con accesso al balcone, zona notte separata e bagno finestrato, curato nei dettagli e completo di box doccia.

L’immobile è dotato di infissi in PVC con doppio vetro, riscaldamento autonomo e aria condizionata, assicurando comfort ed efficienza energetica durante tutto l’anno.

Soluzione ideale per giovani professionisti, studenti o per investitori alla ricerca di un immobile da mettere a reddito senza necessità di ulteriori interventi.

La posizione è strategica: nelle immediate vicinanze si trovano supermercati, farmacie, scuole, parchi e tutti i principali servizi. Ottimi i collegamenti grazie a tram, autobus, passante ferroviario e metropolitana M3.

Che si tratti della tua prima casa o di un investimento sicuro, questo monolocale rappresenta una scelta intelligente.
Da vedere: saprà sorprenderti.

Mostra tutto

Nelle vicinanze

Trasporto pubblico Trasporto pubblico
Lodi T.I.B.B.
Lodi T.I.B.B.
950 m
Brenta
Brenta
1,0 Km
Milano Porta Romana
Milano Porta Romana
830 m
stazione di Milano Porta Vittoria
stazione di Milano Porta Vittoria
890 m
Piazza Salgari
Piazza Salgari
170 m
Ricariche auto elettriche Ricariche auto elettriche
A2A Isola Digitale Largo Marinai D'Italia
920 m
A2A Corso Lodi
970 m
BeCharge Milano Bacchiglione
980 m
BeCharge Milano Botta
1,2 Km
A2A Isola Digitale Corso Lodi
1,3 Km
Scuole Scuole
Istituto d'istruzione superiore Pietro Verri
330 m
Istituto comprensivo "Tommaso Grossi"
350 m
Liceo scientifico statale Albert Einstein
390 m
Scuole
650 m
Scuola elementare Colletta
750 m
Farmacia Farmacia
Farmacia Insubria
50 m
Farmacia
270 m
Farmacia Fiore
490 m
San Camillo
630 m
Farmacia dott. Metalla
730 m
Ospedali Ospedali
Asl
1,1 Km
Ospedale Macedonio Melloni
1,6 Km
Casa di cura "Città di Milano"
1,8 Km
Ospedali
1,8 Km
Policlinico di Milano
2,0 Km
Supermercati Supermercati
Punto Simply
200 m
Sigma - Fratelli Izzi
350 m
Aldi
410 m
Pam
450 m
Esselunga di Viale Umbria
590 m
Negozi Negozi
Negozi
90 m
Anfossi
160 m
Carrefour Express
240 m
I sapori di Denise
240 m
SHARE
440 m
Bar Bar
Tiffany
60 m
New Coffée
90 m
Samuel
90 m
Blue Angels
170 m
L'artista
260 m
Ristoranti Ristoranti
Insubria
80 m
Xing Lang
160 m
La sirenetta
190 m
Sabor latino
220 m
Kofler
320 m
Mostra tutto

Caratteristiche

Rif.:
61167773
Piano:
5 di 5 (ultimo Piano)
Balconi:
1
Camere da letto:
1
Arredamento:
Assente
Condizionamento:
Autonomo
Mostra tutto
Prezzo Prezzo
€ 169.000
Rata mutuo Rata mutuo
€ 796 / mese
Spese annue Spese annue
€ 700
Proponi il tuo prezzoProponi il tuo prezzo

Classe Energetica

G
G
G
G
G
G
G
G
G
Anno di costruzione:
1960
Riscaldamento:
Autonomo
Tipo impianto:
A radiatori
Tipo alimentazione:
Altro

Ti interessa visionare l'immobile?

Fissa un appuntamento  Fissa un appuntamento

Richiedi informazioni

Clicca su Leggi per aprire l'informativa
* Questi campi sono obbligatori

Calcola il tuo mutuo

Semplice e senza impegno
Anticipo

( % )
Mutuo

( % )

pochi semplici passi

inserisci i tuoi dati
Questionario completato
Grazie per aver richiesto un appuntamento senza impegno con un nostro Consulente del Credito e Assicurativo.

Hai inserito correttamente tutti i dati necessari e a breve riceverai una e-mail con un link da convalidare per inviare i tuoi dati.
Affiliato
Progetto Milano Srl
Via Tito Livio, 32 20137 Milano (MI)

Il nostro staff


  • Hagar Hassaballa
    Coordinatrice

  • Andrea Scrocca
    Affiliato

  • Lorenzo Spaccarotella
    Collaboratore

  • Delini Nilanka Warnakulasuriya Fernando
    Responsabile
Via Tito Livio, 32 20137 Milano (MI)
Zona: Libia-Salgari-Tito Livio-Muratori
Mostra su mappa
Affiliato
Progetto Milano Srl
Via Tito Livio, 32 20137 Milano (MI)

2026 Tecnocasa Franchising S.p.A. - P. IVA 08365160152 - Via Monte Bianco 60/A 20089 Rozzano (MI). Ogni agenzia ha un proprio titolare ed è autonoma. Privacy policy | Policy utilizzo | Cookie policy